ipari ingatlan
Bp. XIII. Gyöngyösi út 95. C.ép.(60,8 m2)
Adatok
- Cím: Budapest, XIII. ker. Gyöngyösi út 95.
- Értékesítés típusa: Kiadó
- Ingatlan típusa: ipari ingatlan
- Méret: 60 m2
- Közművek: Áram
- Ár: 900 Ft/m2/hó
Kapcsolattartó
- Neve: Szűcs Judit
- Email címe: jszucs@dbi.hu
- Telefonszáma: 06-30-445-0148
Leírás
XIII. kerületi telephelyünkön, a Gyöngyösi u. 95. szám alatt hidegraktározási tevékenység céljára helyiségek kiadók egy különálló könnyűszerkezetes épületben, 2018.03.10-től!
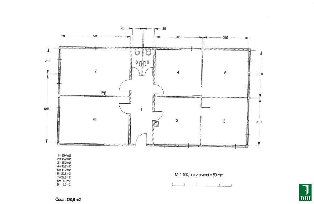
A mellékelt alaprajzon 2-3-4-5. sz. (együtt 60,8 m2) helyiségek kiadók. Közös területi szorzó nincs.
Az épület jellegéből adódóan a bérlemény nem targoncázható, kézi targoncával sem, de bármilyen kézi mozgatással szállítható áru/anyag raktározására kiválóan alkalmas. A helyiségek polcozhatóak, belmagasság: 2,85 m. Ügyfélforgalom bonyolítása nem lehetséges.
A telek közvilágítással rendelkezik, 24 órás biztonsági portaszolgálat működik, a telephelyen térfigyelő kamerák fokozzák a biztonságérzetet.
A fogyasztást (csak villany!) mérőórával mérjük és a mindenkori aktuális egységáron továbbszámlázzuk a bérlő felé.
Az ingatlanon belül parkolóhely bérlésére lehetőség van.
Parkoló bérleti díj: 10.000 Ft,- + áfa/szgk/hó
Az ingatlan autóval egyszerűen megközelíthető, az M3-as autópálya bevezetője pár percre, a Lehel út fél-percnyire található.
Azoknak, akik a tömegközlekedést használják, pár perc sétára található a 14-es villamos, amellyel hamar elérhető az 1-es villamos illetve a 3-as metró, valamint az ingatlanhoz közeli utcában van a 30-as és a gyors 20-as autóbusz megállója is.
Bérleti díj: 900 Ft/m2/hó + áfa + rezsi
Kérjük, hogy időpont egyeztetésért, további információért keresse kapcsolattartónkat.


