iroda
Budapest, XIII., Gogol u. 13. 116. sz. iroda (31 m2)
Adatok
- Cím: Budapest, XIII., Gogol u.13. kiadó iroda 31 m2
- Értékesítés típusa: Kiadó
- Ingatlan típusa: iroda
- Méret: 31 m2
- Közművek: Víz, Csatorna, Gáz, Áram
- Ár: 2 700 Ft/m2/hó
Kapcsolattartó
- Neve: Szűcs Judit
- Email címe: jszucs@dbi.hu
- Telefonszáma: 06-30-445-0148
Leírás
A Gogol13 Irodaház emeletén légkondicionált, világos iroda bérelhető!
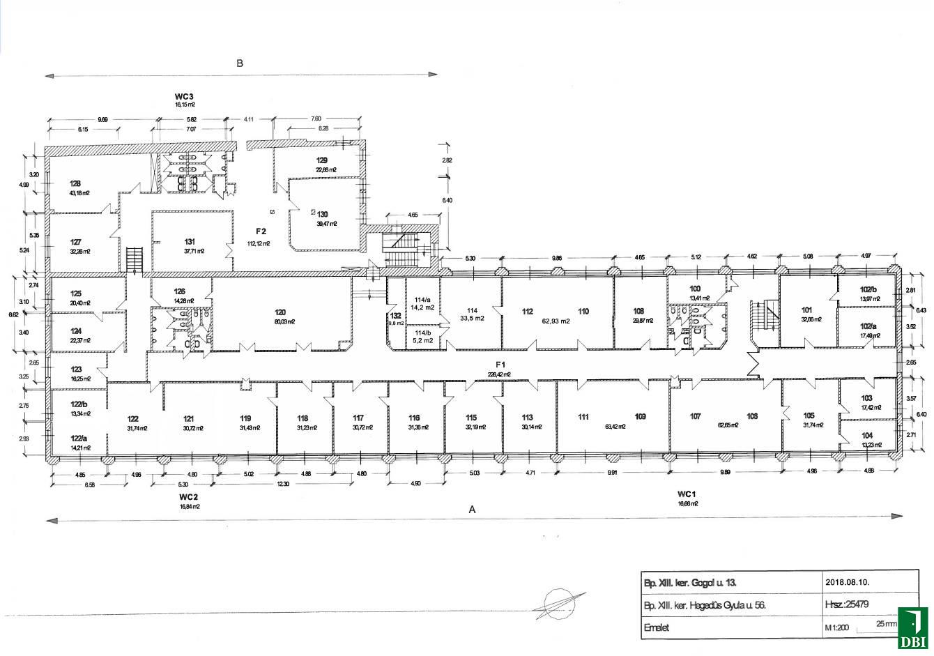
A kiadásra kínált iroda nagysága 31,36 nm, laminált padlós, bútorozatlan, szalagfüggönnyel. Az emeleten két mosdóblokk és egy közös használatú felszerelt konyha található. (Az alaprajzon a 116 sz. helyiség)
Az ingatlan megközelítése gyalogosan kiváló. A Lehel téri piactól, a 3-as metrótól is 5 perc sétára, troli megállótól 2 utcányira vagyunk, 15-ös és 115-ös buszmegálló közvetlenül az irodaház mellett található.
Az ingatlan bérlésekor a bérleti díjon túl üzemeltetési díjat számolunk fel, mely tartalmazza az összes szolgáltatásunkat és a rezsi költséget. Az internet- és telefonszolgáltatóját Ön választhatja meg. Az irodaházban UPC, Invitel és a Magyar Telekom szolgáltatásai érhetőek el. Ennek díját bérlő külön fizeti.
A közös területek takarításáról, rendben tartásáról, karbantartásáról a Bérbeadó gondoskodik. A bérelt terület takarításáról a Bérlő gondoskodik saját magának.
A kerékpárral munkába járóknak bicikli tárolási lehetőséget alakítottunk ki. Sorompóval zárt kültéri parkolónkban beállók bérelhetőek az irodához! Bérleti díja: 18.000 Ft+ÁFA/hó/beálló
A recepción őr- és portaszolgálat gondoskodik a biztonságról és a 0-24 órás elérhetőségről. Az irodaházba illetve a parkolóba csak ellenőrzött személyek tudnak bejutni.
Az emeleten kizárólag a bérlőink - valamint a cégcsoportunkon belül saját magunk - részére hasznosított, 80 m2-es nagy tárgyaló is alkalmi jelleggel bérelhető. (Fél ill. egy napos időszakokra.)
Az ingatlan bérleti díja: 2.700,- Ft/m2/hó+Áfa
Üzemeltetési díj: 1.000,- Ft/m2/hó+Áfa
Mindösszesen: 116.032,- Ft/hó + Áfa
Hívja kapcsolattartónkat bizalommal és kérjen időpontot, tekintse meg az ingatlant!








