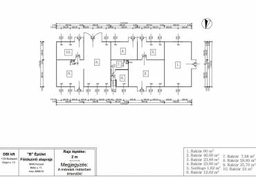
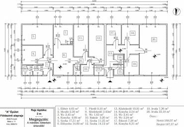
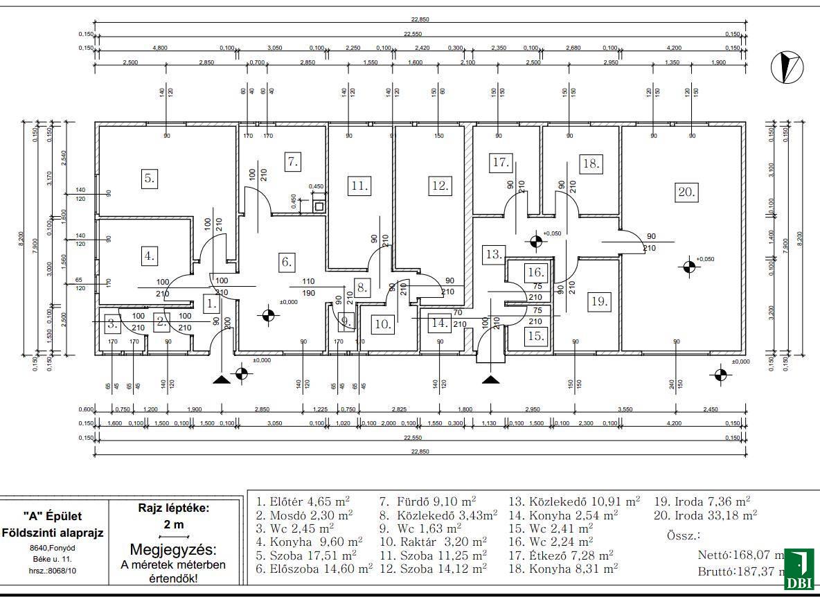
ipari ingatlan
Fonyód, Béke u. 11. kiadó raktár, iroda, munkásszálló
Adatok
- Cím: Fonyód, Béke u. 11. kiadó raktár, iroda, munkásszálló
- Értékesítés típusa: Kiadó
- Ingatlan típusa: ipari ingatlan
- Méret: 4 411 m2
- Közművek: Víz, Csatorna, Gáz, Áram
Kapcsolattartó
- Neve: Szűcs Judit
- Email címe: jszucs@dbi.hu
- Telefonszáma: 06-30-445-0148



