ipari ingatlan
Kaposvár kiadó raktár (H/1.)
Adatok
- Cím: Kaposvár, Raktár u. 13.
- Értékesítés típusa: Kiadó
- Ingatlan típusa: ipari ingatlan
- Méret: 515 m2
- Közművek: Víz, Csatorna, Gáz, Áram
- Ár: 800 Ft/m2/hó
Kapcsolattartó
- Neve: Szűcs Judit
- Email címe: jszucs@dbi.hu
- Telefonszáma: 06-30-445-0148
Leírás
67. sz. főútról megközelíthető, Kaposvár, Raktár utca 13. szám alatt található, csendes, színvonalas telephelyen csarnok kiadó.
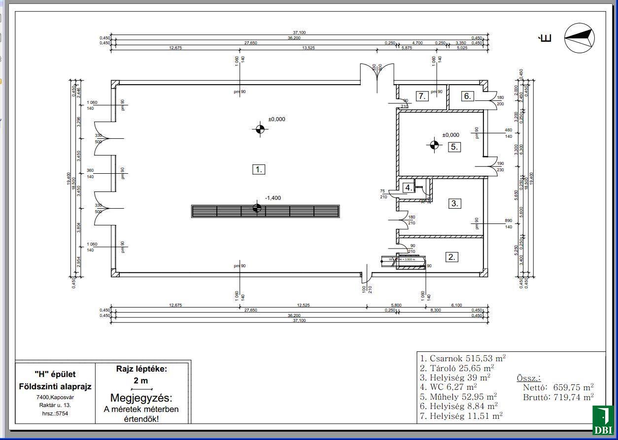
H épületünkben található 1-es számú csarnok 515 m².
Betonozott aljzat, 2 nagy ajtó, ajtó mérete 3,20m x 4,20m. Üvegezett, világos helyiség. A csarnokban szerelő akna található. Áram, víz biztosított!
Ugyanitt további raktár helyiségek, irodahelyiségek és szabad terület is kiadó.
Parkolási lehetőség, 24 órás őrző-védő szolgálat biztosított.
Április közepétől költözhető!
Bérleti díj: 800 Ft/m2/hó + ÁFA. Összesen 412 000 Ft/hó+ÁFA
Kérem, további információkért, árakért, időpont egyeztetésért érdeklődjön kapcsolattartónknál.





