iroda
Kaposvár, Raktár u. 13. A. ép. kiadó iroda
Adatok
- Cím: Kaposvár, Raktár u. 13. A. ép. kiadó iroda
- Értékesítés típusa: Kiadó
- Ingatlan típusa: iroda
- Méret: 12 m2-től 24 m2-ig
- Közművek: Víz, Csatorna, Gáz, Áram
- Ár: 2 600 Ft/m2/hó
Kapcsolattartó
- Neve: Koroknay Martin
- Email címe: mkoroknay@dbi.hu
- Telefonszáma: 06-30-445-0148
Leírás
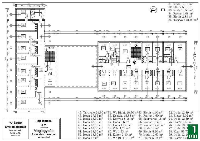
67. sz. főútról megközelíthető, Kaposvár, Raktár utca 13. szám alatt található, csendes, rendezett telephelyen, utcafronti irodaépület földszintjén az 1.,2. 6.,7.,8. sz. irodák.
Bérelhető irodák területe: 12-24,3 nm
Igény esetén lehetőség van az iroda bútorokkal történő berendezésére is.
Valamennyi közmű biztosított. Parkolás a 24 órás őr-, és portaszolgálattal, kamerarendszerrel védett telephelyen belül.
Az ingatlan jelenlegi energetikai besorolása: EE
Bérleti díj 2600 Ft/m²/hó + ÁFA. A bérleti díj tartalmazza a rezsi költségeket is.
Üzemeltetési díj 1018 Ft/m²/hó + ÁFA
További információkért keresse munkatársunkat.








