üzlethelyiség
Paks 64 m2 kiadó üzlethelyiség
Adatok
- Cím: Paks, Barátság u. 3.
- Értékesítés típusa: Kiadó
- Ingatlan típusa: üzlethelyiség
- Méret: 64 m2
- Közművek: Víz, Csatorna, Gáz, Áram
- Ár: 2 200 Ft/m2/hó
Kapcsolattartó
- Neve: Szűcs Judit
- Email címe: jszucs@dbi.hu
- Telefonszáma: 06-30-445-0148
Leírás
A DBI Kft. paksi üzletházába hosszútávra keresi Bérlőjét!
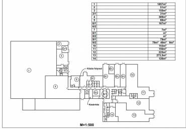
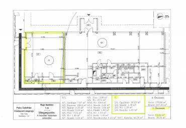
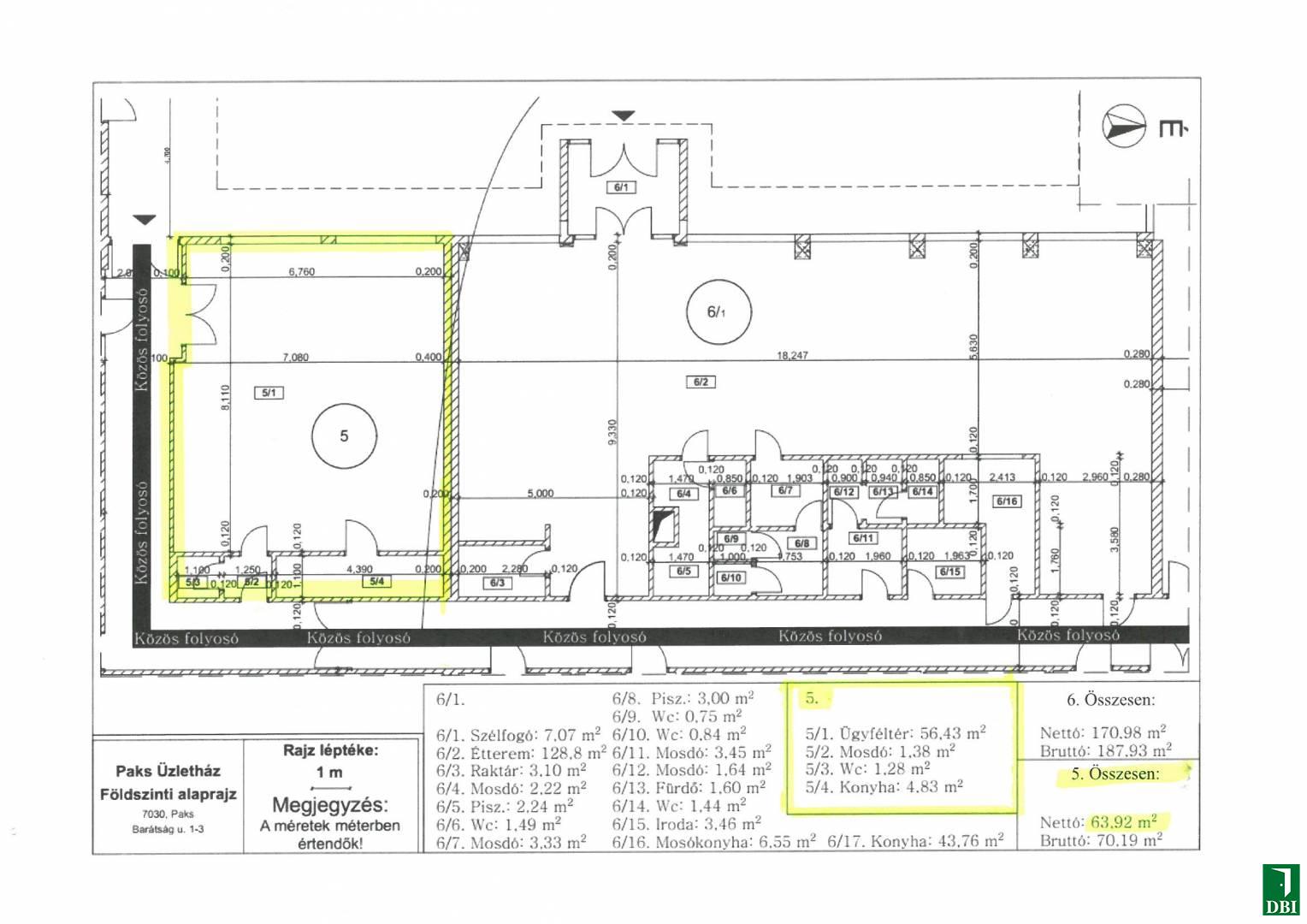
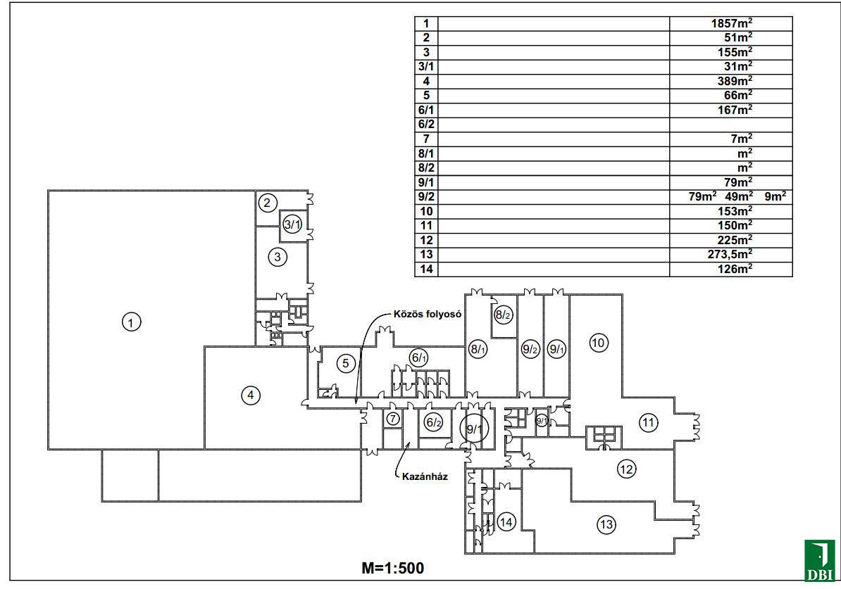
Paks, Barátság u. 3. szám alatt található bejáratott Üzletházunkban bérlésre kínálunk egy 63,92 m2-es üveges portállal rendelkező üzlethelyiséget. (Az alaprajzon 5. számmal jelölve.) Az helyiség közvetlen szomszédságában felkapott gyorsétterem és fitness klub található.
A kiadandó helyiség hidegburkolattal ellátott, könnyen takarítható, közvetlen utcai bejárattal rendelkezik. Adottságai miatt kialakítható ügyféltérré is.Az üzlettérben mosdóhelyiség is kialakításra került.
Víz- és villanyórával ellátott, egyedi mérővel felszerelt, a fogyasztást a mindenkori aktuális egységáron továbbszámlázzuk bérlő felé. A fűtés (távhő) m2 alapon kerül felosztásra a bérlők között.
A szomszéd üzletek nagy része 15 éve működik, nagy törzsvásárlói körrel rendelkeznek, állandó a gyalogosforgalom.
A helyiséget ajánlanánk egyrészt szolgáltató cégek figyelmébe: tv/telefon, bankfiók, gépszerviz, utazási iroda stb., de cipészetnek, cipő boltnak, kulcsmásoló üzletnek, bemutatóteremnek stb. is ideális lehet.
Tájékoztatjuk az érdeklődőket, hogy az üzletházban gyorsétterem, fitness terem, optika, ruházati üzlet, kávézó/bár, drogéria, élelmiszerüzlet, szépségszalon már működik. (Vendéglátóegységnek, ruha- és vegyeskereskedésnek sajnos nem tudjuk kiadni.)
Ingatlan bérleti díja: 2200 Ft/m2/hó+ÁFA
Paks, Barátság u. 3. szám alatt található bejáratott Üzletházunkban bérlésre kínálunk egy 63,92 m2-es üveges portállal rendelkező üzlethelyiséget. (Az alaprajzon 5. számmal jelölve.) Az helyiség közvetlen szomszédságában felkapott gyorsétterem és fitness klub található.
A kiadandó helyiség hidegburkolattal ellátott, könnyen takarítható, közvetlen utcai bejárattal rendelkezik. Adottságai miatt kialakítható ügyféltérré is.Az üzlettérben mosdóhelyiség is kialakításra került.
Víz- és villanyórával ellátott, egyedi mérővel felszerelt, a fogyasztást a mindenkori aktuális egységáron továbbszámlázzuk bérlő felé. A fűtés (távhő) m2 alapon kerül felosztásra a bérlők között.
A szomszéd üzletek nagy része 15 éve működik, nagy törzsvásárlói körrel rendelkeznek, állandó a gyalogosforgalom.
A helyiséget ajánlanánk egyrészt szolgáltató cégek figyelmébe: tv/telefon, bankfiók, gépszerviz, utazási iroda stb., de cipészetnek, cipő boltnak, kulcsmásoló üzletnek, bemutatóteremnek stb. is ideális lehet.
Tájékoztatjuk az érdeklődőket, hogy az üzletházban gyorsétterem, fitness terem, optika, ruházati üzlet, kávézó/bár, drogéria, élelmiszerüzlet, szépségszalon már működik. (Vendéglátóegységnek, ruha- és vegyeskereskedésnek sajnos nem tudjuk kiadni.)
Ingatlan bérleti díja: 2200 Ft/m2/hó+ÁFA
Ingatlan üzemeltetési díja: 200 Ft/m2/hó+ÁFA
Amennyiben szeretné az üzlethelyiséget megtekinteni vagy részletesebb tájékoztatást kapni, bizalommal keresse kapcsolattartónkat !











