iroda
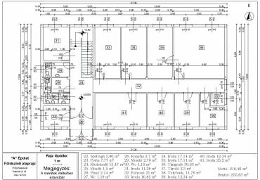
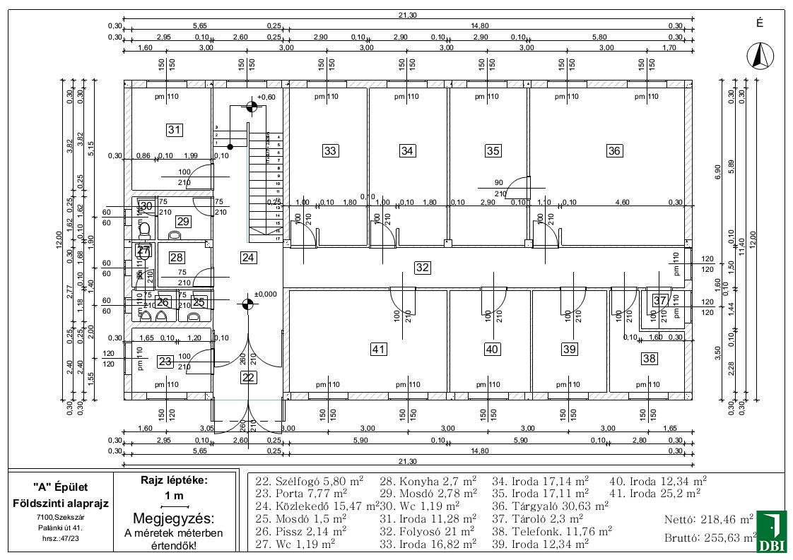
Szekszárd kiadó iroda (A/fsz. 33-34)
Adatok
- Cím: Szekszárd, Szekszárd, Palánki u. 41
- Értékesítés típusa: Kiadó
- Ingatlan típusa: iroda
- Méret: 33 m2
- Közművek: Víz, Csatorna, Gáz, Áram
- Ár: 1 600 Ft/m2/hó
Kapcsolattartó
- Neve: Szűcs Judit
- Email címe: jszucs@dbi.hu
- Telefonszáma: 06-30-445-0148
Leírás
Szekszárd, Palánki u. 41. szám alatt fekvő telephelyünkön kínáljuk kiadásra 33-34. számú irodánkat az A épületben. Az irodák klimatizáltak és az 1600 Ft/m2/hó+Áfa bérleti díjba bele értendő a normál használatból adódó rezsi költség. Igény esetén akár 246,23 m2 iroda is bérelhető, továbbá raktárakat, műhelyeket és szabad területeket kínálunk kiadsára.
Telephelyünkön 0-24 órás portaszolgálat működik.
Amennyiben hirdetésünk felkeltette érdeklődését forduljon hozzánk bizalommal.



