iroda
Szekszárd, Palánki út 41. kiadó iroda (A épület/em. 43 sz. 16,14 m2)
Adatok
- Cím: Szekszárd, Palánki út 41. kiadó iroda 16,14 m2
- Értékesítés típusa: Kiadó
- Ingatlan típusa: iroda
- Méret: 16 m2
- Közművek: Víz, Csatorna, Gáz, Áram
- Ár: 1 600 Ft/m2/hó
Kapcsolattartó
- Neve: Szűcs Judit
- Email címe: jszucs@dbi.hu
- Telefonszáma: 06-30-445-0148
Leírás
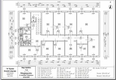
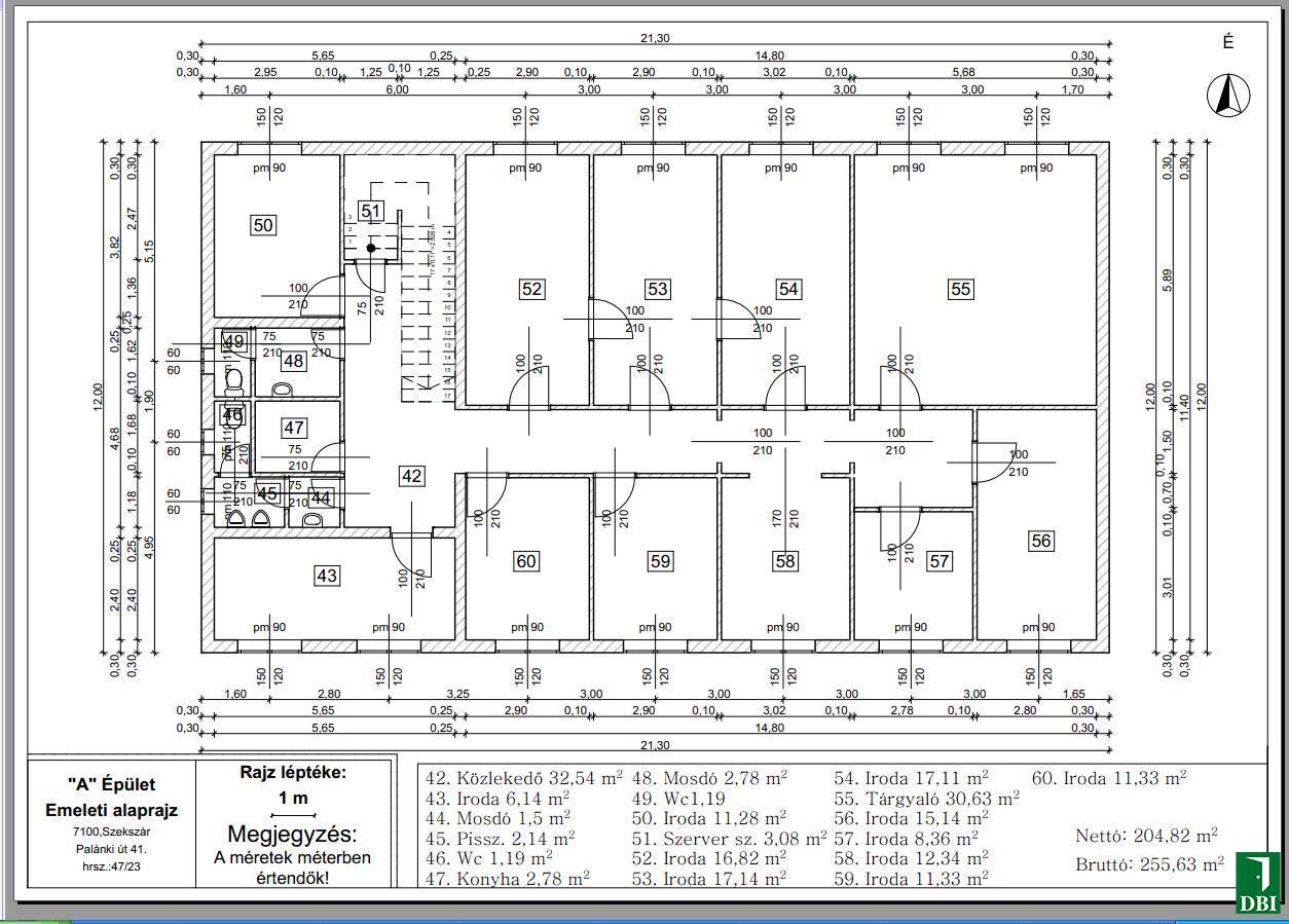
A város északi határában lévő, M6-ról kiválóan megközelíthető telephelyen, utcafronti kétszintes irodaépületben irodák kiadók.
Igény esetén A épületünk emeletén, 127 m2 irodaterületet tudunk rendelkezésre bocsátani, de ezek mellett raktárakat, műhelyeket és szabad területet is kínálunk.
A épület, emeletén található 43. iroda helyiségét kiadásra kínáljuk, mely 16,14 nm.
A telephelyen 24 órás biztonsági portaszolgálat működik.
Kérjük, időpontegyeztetésért, további információért hívja kapcsolattartónkat.



